EasyManua.ls Logo

Mitsubishi FR-A800

Mitsubishi FR-A800
746 pages
To Next Page IconTo Next Page
To Next Page IconTo Next Page
To Previous Page IconTo Previous Page
To Previous Page IconTo Previous Page
Loading...
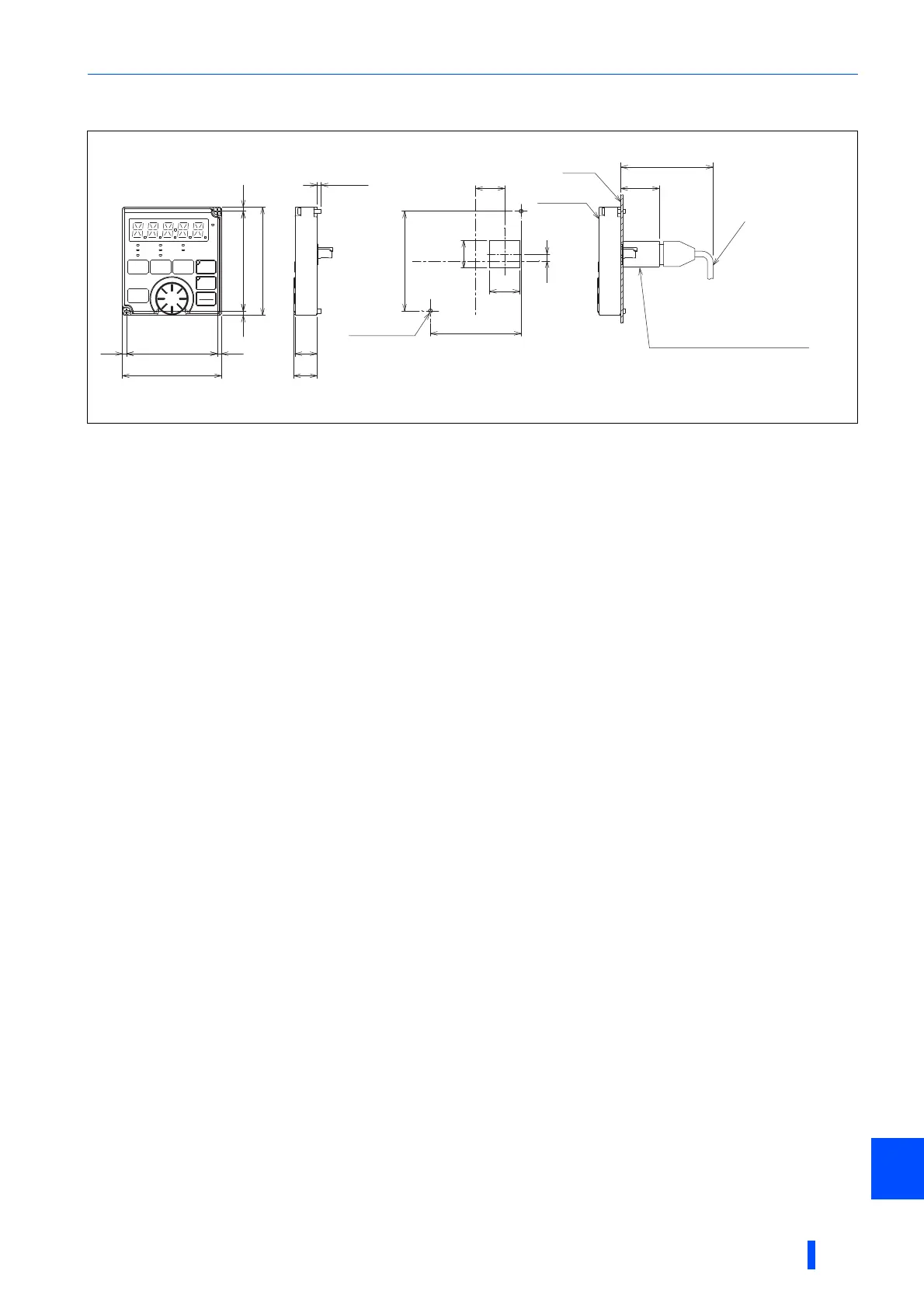
Outline dimension drawings
SPECIFICATIONS
701
8
Operation panel (FR-DU08)
<Outline drawing> <Panel cutting dimension drawing>
27.8
FR-DU08
66
72.5
78.5
33
3 3
72
16
17
3.2max
66
72.5
21
5
22
20
2-M3 screw
Panel
Air-
bleeding
hole
Operation panel connection connector
(FR-ADP option)
Parameter unit connection
cable (FR-CB2[ ] ) (option)
120 or more
Denotes the space required to connect an optional
parameter unit connection cable (FR-CB2[ ]). When
using another cable, leave the space required for the
cable specification.
(Unit: mm)

Table of Contents

Related product manuals