EasyManua.ls Logo

Mitsubishi FR-A800

Mitsubishi FR-A800
746 pages
To Next Page IconTo Next Page
To Next Page IconTo Next Page
To Previous Page IconTo Previous Page
To Previous Page IconTo Previous Page
Loading...
Outline dimension drawings
706
SPECIFICATIONS
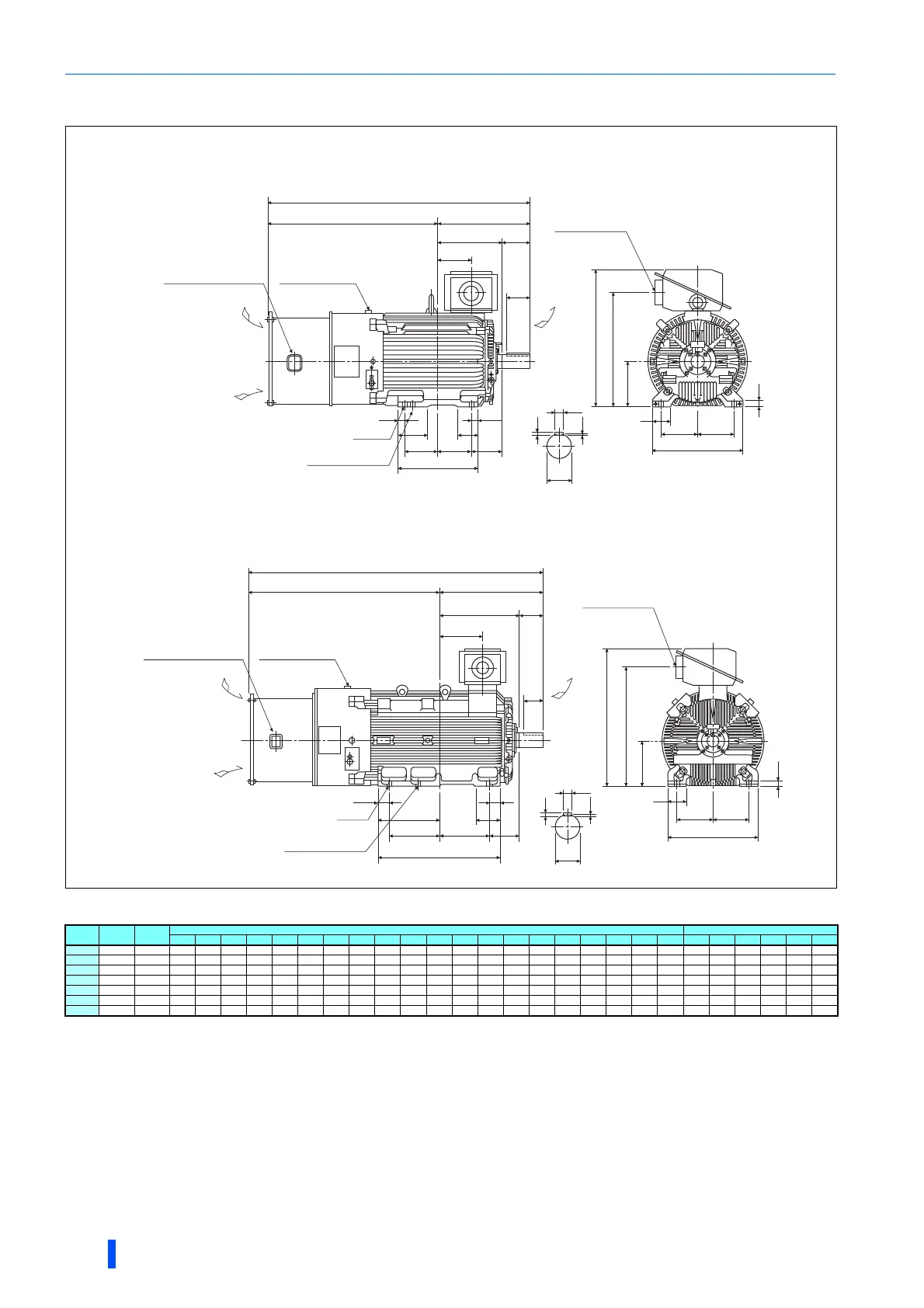
Dedicated motor (SF-THY) outline dimension drawings (1500 r/min series)
Dimensions table (Unit: mm)
Note) The tolerance of the top and bottom of the center shaft height *C is for the 250 frame and for the 280 frame or more.
Frame Number 250MD, 280MD
75kW to 160kW
Frame Number 280L, 315H
200kW, 250kW
Output
Frame
No.
Mass
(kg)
Motor Shaft End Size
A B C D E F G H J K K1 K2 L M N R Z XB KA KG Q QK S W T U
75 250MD 610 988.5 340.5 250 557 203 174.5 30 775 100 130 168 50 1471 486 449 482.5 24 168 157.5 635 140 110
75m6
20 12 7.5
90 250MD 660 988.5 340.5 250 557 203 174.5 30 775 100 130 168 50 1471 486 449 482.5 24 168 157.5 635 140 110
75m6
20 12 7.5
110 280MD 870
1049.5
397.5 280 607 228.5 209.5 30 845 110 130 181 40 1619 560 449 569.5 24 190 210.5 705 170 140
85m6
22 14 9
132 280MD 890
1049.5
397.5 280 607 228.5 209.5 30 845 110 130 181 40 1619 560 449 569.5 24 190 210.5 705 170 140
85m6
22 14 9
160 280MD 920
1049.5
397.5 280 607 228.5 209.5 30 845 110 130 181 40 1619 560 499 569.5 24 190 210.5 705 170 140
85m6
22 14 9
200 280L 1170
1210.5
416.5 280 652 228.5 228.5 30 885 110 160 160 75 1799 560 607 588.5 24 190 214.5 745 170 140
85m6
22 14 9
250 315H 1630 1343 565 315 717 254 355 35 965 130 175 428 80 2084 636 870 741 28 216 306 825 170 140
95m6
25 14 9
L
A
R
B
KA
Q
QK
Exhaust
Connector (for encoder)
MS3102A20-29P
Suction
K2
K2
K1
F
FXB
N
K
4-φZ hole
This hole is not used.
PF4 Class B screw
J
EE
S
W
M
H
KG
C
T
U
G
Terminal box for cooling fan
Direction of
cooling fan wind
Terminal box for cooling fan
L
A
R
B
K2
K1 K
K2
XB
FF
N
KA
Q
QK
Exhaust
Suction
4-φZ hole
This hole is not used.
PF4 Class B screw
S
W
T
U
H
KG
G
C-
1.0
J
EE
M
0
Connector (for encoder)
MS3102A20-29P
Direction of
cooling fan wind
0
-0.5
0
-1.0

Table of Contents

Related product manuals