EasyManua.ls Logo

Xerox DocuColor 1632 - Page 219

Xerox DocuColor 1632
1064 pages
Print Icon
To Next Page IconTo Next Page
To Next Page IconTo Next Page
To Previous Page IconTo Previous Page
To Previous Page IconTo Previous Page
Loading...
6/02
2-189
DC1632/2240
10-354
Status Indicator RAPs
Prelaunch Training/Review
10-354 Sub Heater Warm Up
The temperature did not reach the READY temperature.
Procedure
NOTE: To clear this fault, re-set the value of
dC131-744-003 to "0".
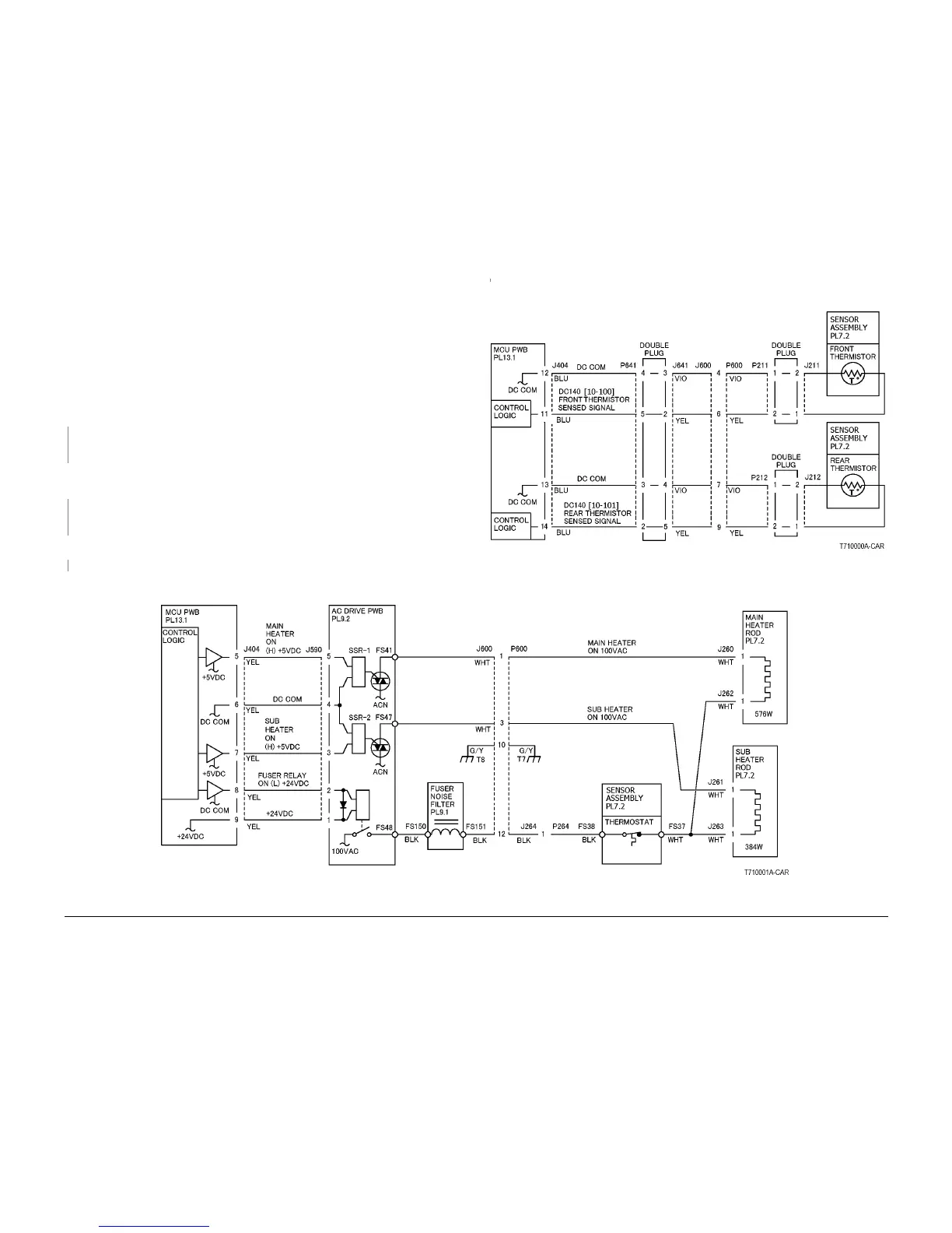
Turn off the power, remove the Fuser Assembly. and allow it to cool down. Measure the resis-
tance between P/J600-4 and P/J600-6 on the Fuser Assembly. The resistance is between 30
and 190 K Ohmís.
YN
Check the Front Thermistor for an open circuit and poor contact. If the check is OK,
replace the Sensor Assembly (PL 7.2).
Reinstall the Fuser Assembly, turn the power ON. Enter dC140 [010-100]. The display value
is between 678 and 699.
YN
Turn the power off. Check for an open or poor connection between P/J404-12 and P/J404-
11on the MCU PWB PL 13.1. If the check is OK, replace the MCU PWB (PL 13.1).
There is +3.4VDC measured at P/J404-5 on the MCU PWB.
YN
Replace the MCU PWB (PL 13.1).
Check the wires and connectors. If the check is OK, replace the AC Drive PWB (PL 9.2).
Figure 1 Fuser Front and Rear Thermistor CD
Figure 2 Fuser Main Heater and Sub Heater CD
A
A

Table of Contents

Other manuals for Xerox DocuColor 1632

Related product manuals