EasyManua.ls Logo

Xerox DocuColor 1632 - Page 221

Xerox DocuColor 1632
1064 pages
Print Icon
To Next Page IconTo Next Page
To Next Page IconTo Next Page
To Previous Page IconTo Previous Page
To Previous Page IconTo Previous Page
Loading...
6/02
2-191
DC1632/2240
10-356
Status Indicator RAPs
Prelaunch Training/Review
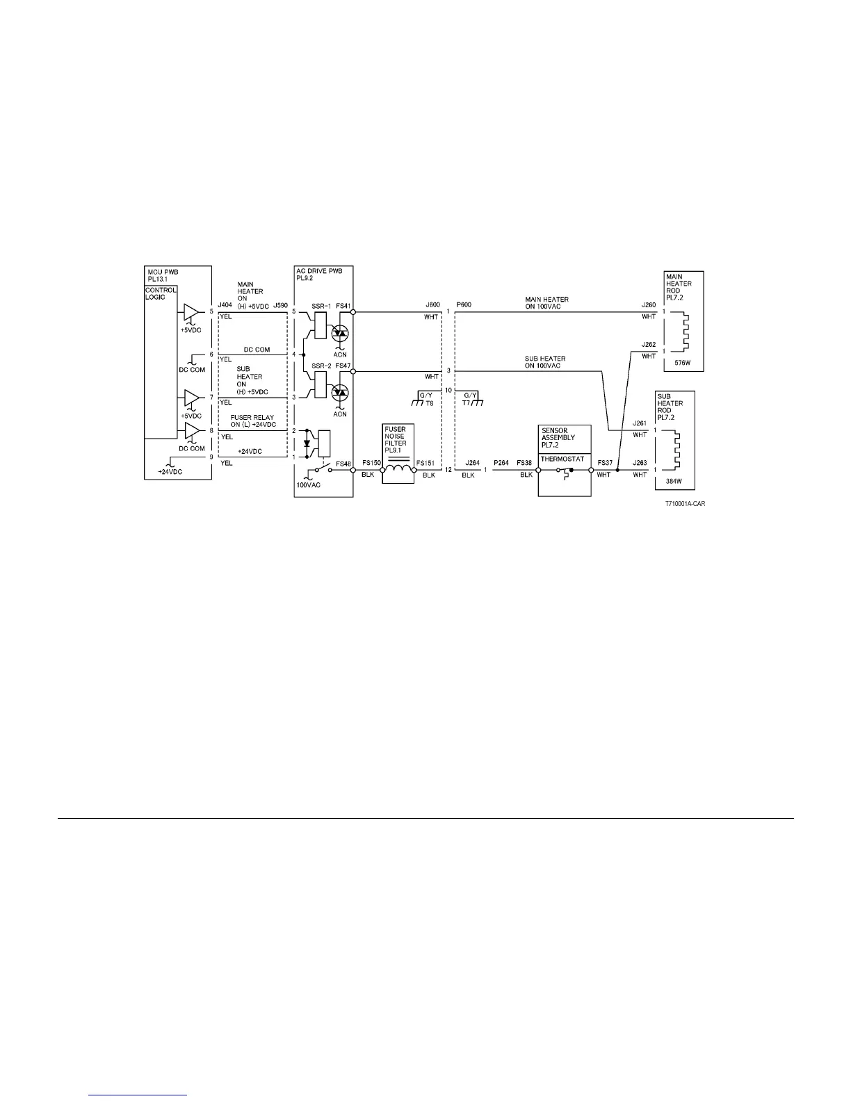
Figure 2 Fuser Main Heater and Sub Heater CD

Table of Contents

Other manuals for Xerox DocuColor 1632

Related product manuals