EasyManua.ls Logo

Cisco ONS 15454 DWDM - Figure 8-13 TXP_MR_10 E_C and TXP_MR_10 E_L Faceplates and Block Diagram; Client Interface

Cisco ONS 15454 DWDM
830 pages
To Next Page IconTo Next Page
To Next Page IconTo Next Page
To Previous Page IconTo Previous Page
To Previous Page IconTo Previous Page
Loading...
8-17
Cisco ONS 15454 DWDM Reference Manual, R8.5
78-18343-02
Chapter 8 Transponder and Muxponder Cards
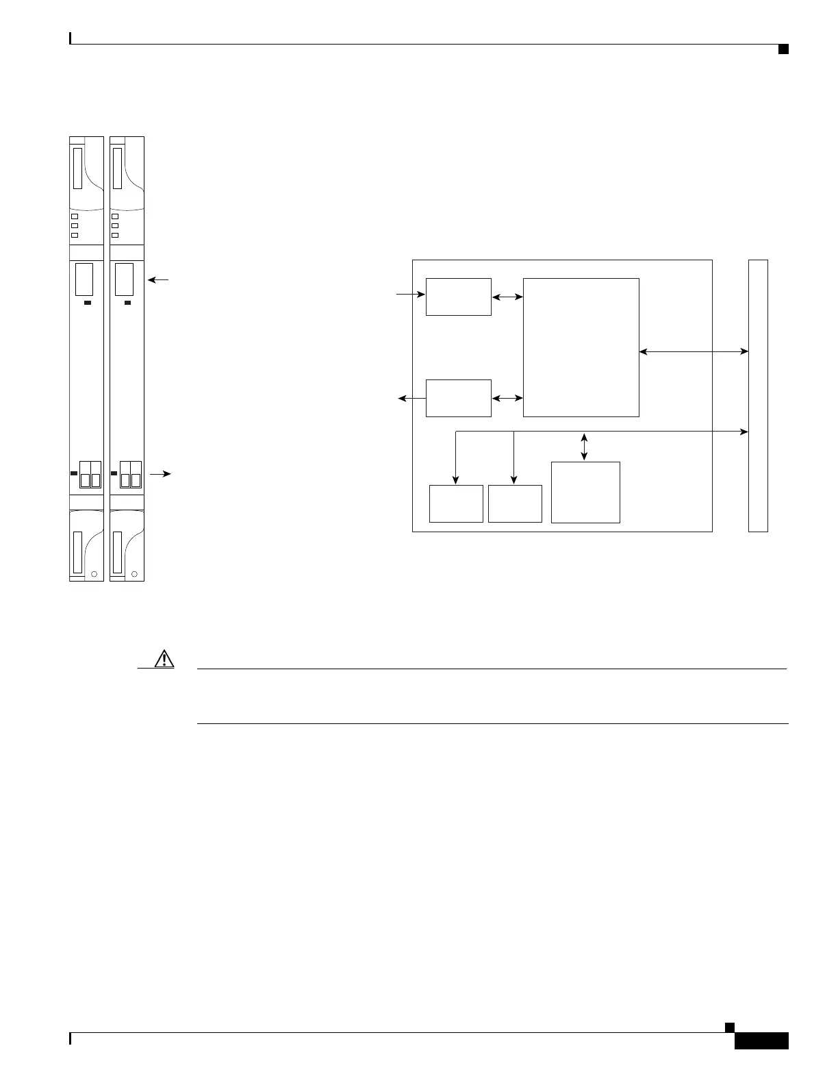
8.5.3 Client Interface
Figure 8-13 TXP_MR_10E_C and TXP_MR_10E_L Faceplates and Block Diagram
For information on safety labels for the cards, see the “8.2.2 Class 1M Laser Product Cards” section on
page 8-6.
Caution You must use a 15-dB fiber attenuator (10 to 20 dB) when working with the TXP_MR_10E_C or
TXP_MR_10E_L card in a loopback on the trunk port. Do not use direct fiber loopbacks with the cards.
Using direct fiber loopbacks causes irreparable damage to the cards.
8.5.3 Client Interface
The client interface is implemented with a separately orderable XFP module. The module is a tri-rate
transceiver, providing a single port that can be configured in the field to support an OC-192 SR-1
(Telcordia GR-253-CORE) or STM-64 I-64.1 (ITU-T G.691) optical interface, as well as 10GE LAN
PHY (10GBASE-LR), 10GE WAN PHY (10GBASE-LW), or 10G-FC signals.
The client side XFP pluggable module supports LC connectors and is equipped with a 1310-nm laser.
uP bus
Serial bus
uP
Flash
RAM
Optical
transceiver
134975
Framer/FEC/DWDM
processor
Client
interface
DWDM
trunk
(long range)
Optical
transceiver
Client interface
STM-64/OC-192
or 10GE (10GBASE-LR)
or 10G-FC (1200-SM-LL-L)
B
a
c
k
p
l
a
n
e
DWDM trunk
STM-64/OC-192
82 tunable channels (C-band) or
80 tunable channels (L-band) on
the 50-GHz ITU grid
FAI L
ACT/STBY
SF
10E MR
TXP L
TX
RX
RX
TX
FAI L
ACT/STBY
SF
10E MR
TXP C
TX
RX
RX
TX

Table of Contents

Other manuals for Cisco ONS 15454 DWDM

Related product manuals