EasyManua.ls Logo

Cisco ONS 15454 DWDM - ROADM Node Fiber-Optic Cabling

Cisco ONS 15454 DWDM
830 pages
To Next Page IconTo Next Page
To Next Page IconTo Next Page
To Previous Page IconTo Previous Page
To Previous Page IconTo Previous Page
Loading...
9-56
Cisco ONS 15454 DWDM Reference Manual, R8.5
78-18343-02
Chapter 9 Node Reference
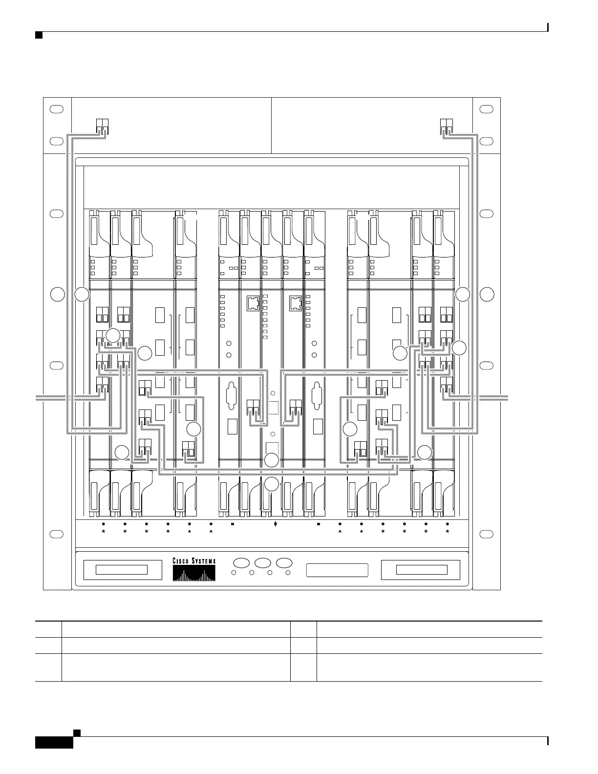
9.5.7 ROADM Node Fiber-Optic Cabling
Figure 9-39 Fibering a ROADM Node
1 Side A DCU TX to Side A OPT-PRE DC RX
1
8 Side A 32WSS EXP RX to Side B 32WSS EXP TX
2 Side A DCU RX to Side A OPT-PRE DC TX
1
9 Side B 32DMX COM RX to Side B 32WSS DROP TX
3 Side A OPT-BST COM TX to Side A OPT-PRE
COM RX
10 Side B 32WSS COM RX to Side B OPT-PRE
COM TX
115473
DCU-xxx West DCU-xxx East
FAIL
ACT
SF
INPUT 1
INPUT 2
INPUT 3
INPUT 4
OUTPUT 1
OUTPUT 2
OUTPUT 3
OUTPUT 4
RING
CALL
LOCAL OW
RING
CALL
EXPRESS OW
CONTACT
STATUS
AIC
OPT
BST
FAI L
ACT
SF
RX
MON
TX
RX
COM
TX
RX
OSC
TX
RX
LINE
TX
OPT
PRE
FAI L
ACT
SF
MON
RX
COM
TX
RX
DC
TX
OPT
BST
FAI L
ACT
SF
RX
MON
TX
RX
COM
TX
RX
OSC
TX
RX
LINE
TX
OPT
PRE
FAIL
ACT
SF
MON
RX
COM
TX
RX
DC
TX
OSCM
FAI L
ACT
SF
UC
RX
TX
OSCM
FAI L
ACT
SF
UC
RX
TX
TCC2
FAIL
SF
PWR
AB
CRIT
MAJ
MIN
REM
SYNC
ACO
ACO
LAMP TEST
RS-232
TCP/IP
LINK
ACT
TCC2
FAIL
SF
PWR
AB
CRIT
MAJ
MIN
REM
SYNC
ACO
ACO
LAMP TEST
RS-232
TCP/IP
LINK
ACT
RX
TX
RX
TX
FAI L
ACT
SF
54.1-60.6 46.1-52.5 38.1-44.5 30.3-36.6
DROP
TX
EXP
RX
TX
COM
RX
TX
ADD RX
32WSS
FAIL
ACT
SF
54.1-60.6 46.1-52.5 38.1-44.5 30.3-36.6
DROP
TX
EXP
RX
TX
COM
RX
TX
ADD RX
32WSS
FAI L
ACT
SF
32DMX32DMX
54.1-60.6 46.1-52.5 38.1-44.5 30.3-36.6
COM
RX
TX
FAI L
ACT
SF
32DMX
54.1-60.6 46.1-52.5 38.1-44.5 30.3-36.6
COM
RX
TX
32DMX 32DMX
3
2
1
13
14
7
8
4
5
11
10
6 9
12
1 2 3 4 5 6 7 8 9 10 11 12 13 14 15 16 17
P P
++

Table of Contents

Other manuals for Cisco ONS 15454 DWDM

Related product manuals