EasyManua.ls Logo

Sel 411L - Figure 9.12 Typical Station DC Battery System; Station DC Battery System Monitor

Sel 411L
1108 pages
Print Icon
To Next Page IconTo Next Page
To Next Page IconTo Next Page
To Previous Page IconTo Previous Page
To Previous Page IconTo Previous Page
Loading...
P.9.20
SEL-411L Relay Protection Manual Date Code 20151029
Monitoring and Metering
Station DC Battery System Monitor
Station DC Battery System Monitor
The relay automatically monitors station battery system health by measuring
the dc voltage, ac ripple, and voltage between each battery terminal and
ground. The relay provides two dc monitor channels, Vdc1 and Vdc2. Four
voltage thresholds give you the ability to create five sensing zones (low
failure, low warning, normal, high warning, and high failure) for the dc
voltage.
The ac ripple quantity indicates battery charger health. When configuring the
ac ripple setting DC1RP, we can define the ripple content of a dc supply as the
peak-to-peak ac component of the output supply waveform.
The relay also makes measurements between the battery terminal voltages and
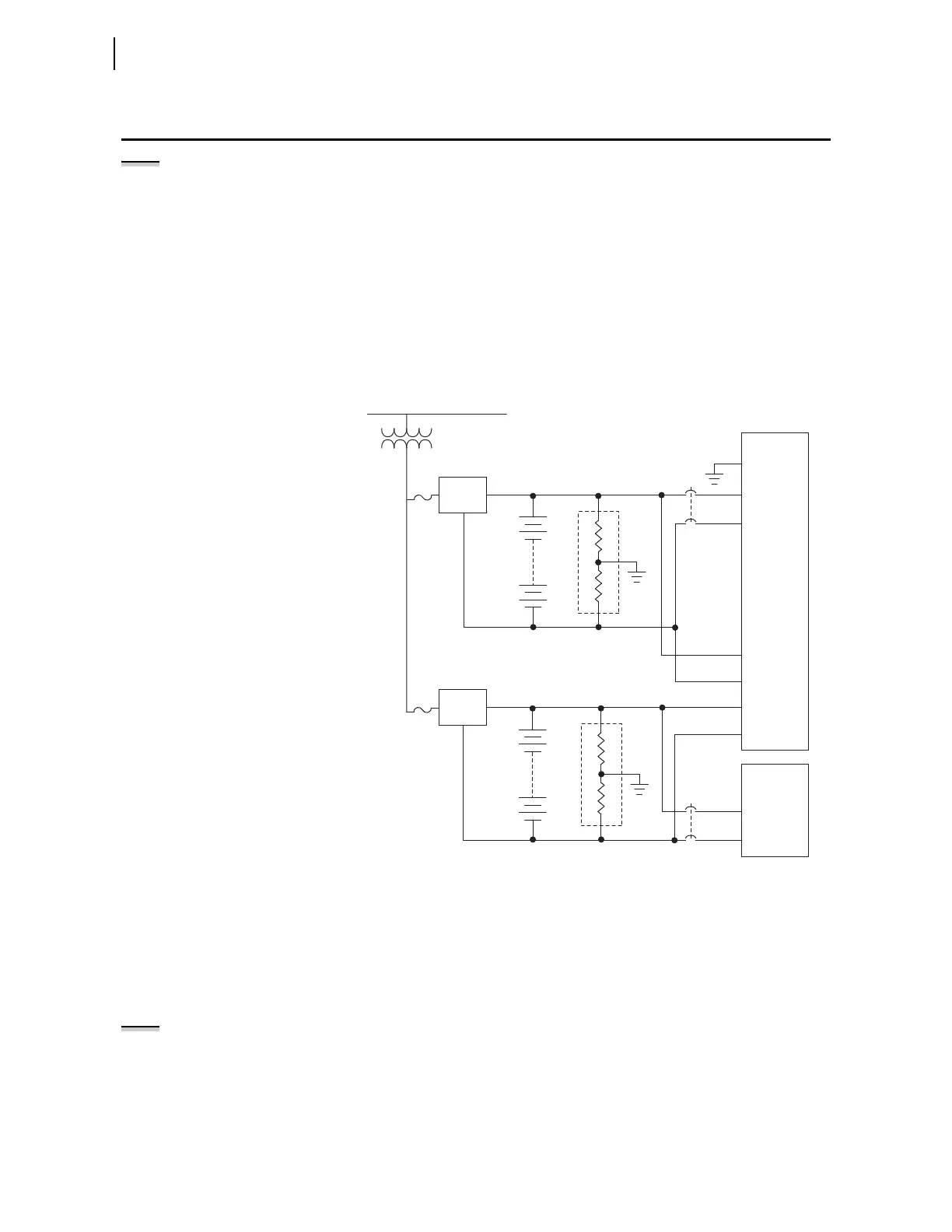
station ground to detect positive and negative dc ground faults. Figure 9.12
shows a typical dual-battery dc system.
Figure 9.12 Typical Station DC Battery System
The dc battery monitor measures the station battery voltage applied at the
rear-panel terminals labeled Vdc1 (+ and –) and Vdc2 (+ and –). Monitoring
dc voltage during circuit breaker operation gives a quick test of the battery
system, which includes wiring and junctions from the batteries to the circuit
breaker. In the breaker report and in the breaker history report, the relay
displays the minimum value of station battery voltage during circuit breaker
operation on a per-pole basis.
NOTE: First enable Station DC
Monitoring (with the Global setting
EDCMON) to access station dc battery
monitor settings.
Table 9.7 lists the station dc battery monitor settings and the corresponding
Relay Word bits that assert when battery quantities exceed these settings
thresholds. Use the SET G ASCII command from a terminal or use the
ACSELERATOR QuickSet Global > Station DC Monitoring branch of the
Settings tree view to access the DC Monitor settings.
NOTE: This section lists settings for
Station DC Battery Monitor 1; settings
for Station DC Battery Monitor 2 are
similar; replace 1 in the setting with 2.
Station
Service
Chassis
Ground
Power
Battery
Charger
125 Vdc
Relay
Comm.
Equipment
+
Vdc 1
+
Vdc 2
+
Battery
Charger
48 Vdc
Power
+

Table of Contents

Related product manuals