EasyManua.ls Logo

Xerox DocuColor 2240 - Page 276

Xerox DocuColor 2240
1489 pages
Print Icon
To Next Page IconTo Next Page
To Next Page IconTo Next Page
To Previous Page IconTo Previous Page
To Previous Page IconTo Previous Page
Loading...
09/03
2-243
DC 3535/2240/1632, WC M24
12-104
Status Indicator RAPs
Initial issue
12-104 H Transport Exit Sensor On
The H Transport Exit Sensor did not detect paper within the specific time after the H Transport
Entrance Sensor has detected the paper. (The specified time differs depending on the paper
size.)
Initial Actions
Check condition and specification of the paper supply.
Check for obstructions in the paper feed path.
Clean the H Transport Belt and check for wear.
Check the Guides on the H Transport Cover for damage, wear or faulty installation.
Procedure
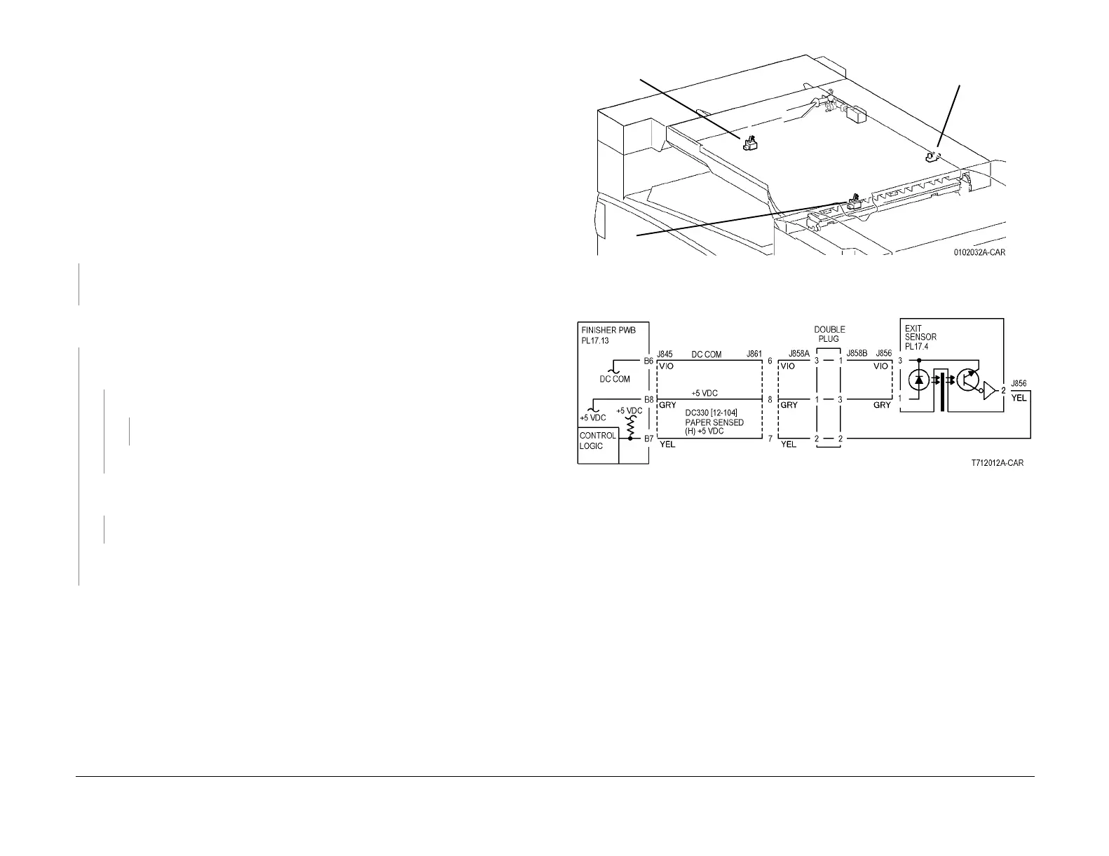
Enter dC330 [012-104] and press Start. Open the H Transport Cover (PL 17.3) and actuate the
H Transport Exit Sensor (PL 17.4) (Figure 1). The display changes.
YN
Press Stop. Check the circuit of the H Transport Exit Sensor (Figure 2). Refer to the OF
99-2 RAP for troubleshooting procedure.
Close the H Transport Cover and press Stop. Enter dC330 [012-001] and press Start. The
Finisher Drive Motor (PL 17.7) energizes (Figure 3).
YN
Remove the Rear Cover (PL 17.5). +24 VDC is measured between P/J879-2 and 3 on
the Finisher Drive Motor and GND.
YN
+24 VDC is measured between P/J846 -5 and 7 on the Finisher PWB and GND.
YN
Replace the Finisher PWB (PL 17.13).
Check the wires from P/J846-5 and 7 to J879-2 and 3 for damage or poor contact.
Enter dC330 [012-001] and press Start. Less than +1 VDC is measured between P/
J879 -1 on the Finisher Drive Motor and GND.
YN
Replace the Finisher Drive Motor (PL 17.7).
Check wiring between P/J879 and P/J846 for damage or poor contact. If the check is
OK, replace the Finisher PWB (PL 17.13).
Press Stop.
Ensure that the connectors shown in the circuit diagrams (Figure 2, Figure 3) are securely
connected and that the wires are not damaged.
Check the H Transport and Finisher for a docking failure (PL 17.1).
Check the Finisher Drive Motor and its associated gears and belts (PL 17.4, PL 17.7) for
damage, contamination or misalignment.
Replace the H Transport Exit Sensor (PL 17.4).
If the problem persists, replace the Finisher PWB (PL 17.13) (Figure 4).
Figure 1 Component Location
Figure 2 12-104 RAP Circuit Diagram - H Transport Exit Sensor
Entrance
Sensor
Exit
Sensor
Interlock
Sensor

Table of Contents

Other manuals for Xerox DocuColor 2240

Related product manuals