EasyManua.ls Logo

Xerox DocuColor 2240 - CCD Agc

Xerox DocuColor 2240
1489 pages
Print Icon
To Next Page IconTo Next Page
To Next Page IconTo Next Page
To Previous Page IconTo Previous Page
To Previous Page IconTo Previous Page
Loading...
09/03
2-315
DC 3535/2240/1632, WC M24
15-385
Status Indicator RAPs
Initial issue
15-385 CCD AGC
Automatic Gain Control (AGC) for CCD Channel 6 blue failed.
Initial Actions
Verify that the Platen Glass is installed correctly (REP 6.2).
Verify that NVM location 715-400 = 1
Procedure
Enter dC330 [6-002] and press Start. The Exposure Lamp illuminates.
YN
Go to the 6-371 RAP.
The Exposure Lamp illumination is bright and steady.
YN
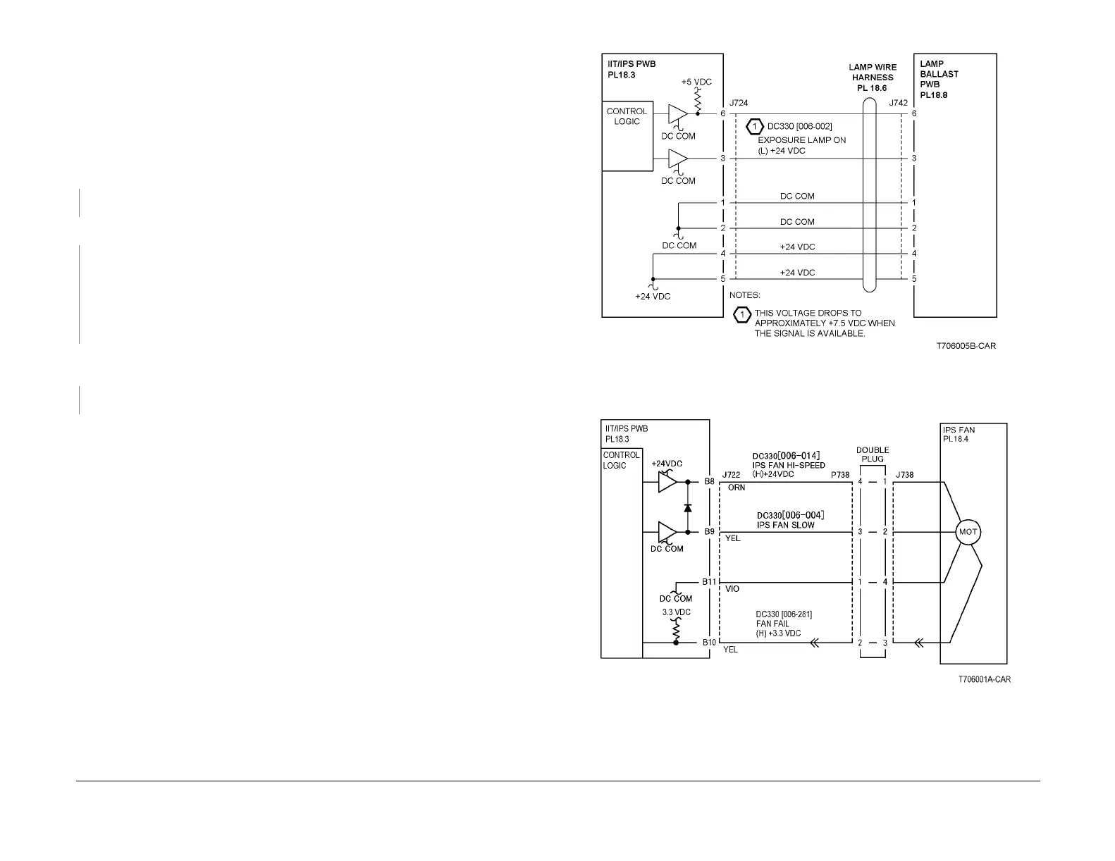
Go to P/J722 (Figure 2) and P/J724 (Figure 1) and check the wires for an open or short
circuit.
Verify that P/J742 on the Lamp Ballast PWB and P/J724 on the IIT/IPS PWB are seated.
If the wires and connectors are good, replace the Exposure Lamp (PL 18.6).
If the problem continues, replace the Lamp Ballast PWB (PL 18.6).
If the problem continues, replace the IIT/IPS PWB (PL 18.3).
Remove the Platen Glass (REP 6.2). The white reference strip on frame under the Regis-
tration Gate is clean and undamaged.
YN
Clean the white reference strip.
Go to P/J721 (Figure 3) and check the flat cable on the IIT/IPS PWB and P/J741 (Figure 3) on
the CCD PWB for damage. Reseat the flat cable.
If the problem continues, replace the Lens Kit (PL 18.4).
If the problem continues, replace the IIT/IPS PWB (PL 18.3).
Figure 1 15-385 RAP Circuit Diagram - Lamp Ballast
Figure 2 15-385 RAP Circuit Diagram - IPS Fan

Table of Contents

Other manuals for Xerox DocuColor 2240

Related product manuals