EasyManua.ls Logo

Xerox DocuColor 2240 - Page 169

Xerox DocuColor 2240
1489 pages
Print Icon
To Next Page IconTo Next Page
To Next Page IconTo Next Page
To Previous Page IconTo Previous Page
To Previous Page IconTo Previous Page
Loading...
09/03
2-136
DC 3535/2240/1632, WC M24
7-271
Initial issue
Status Indicator RAPs
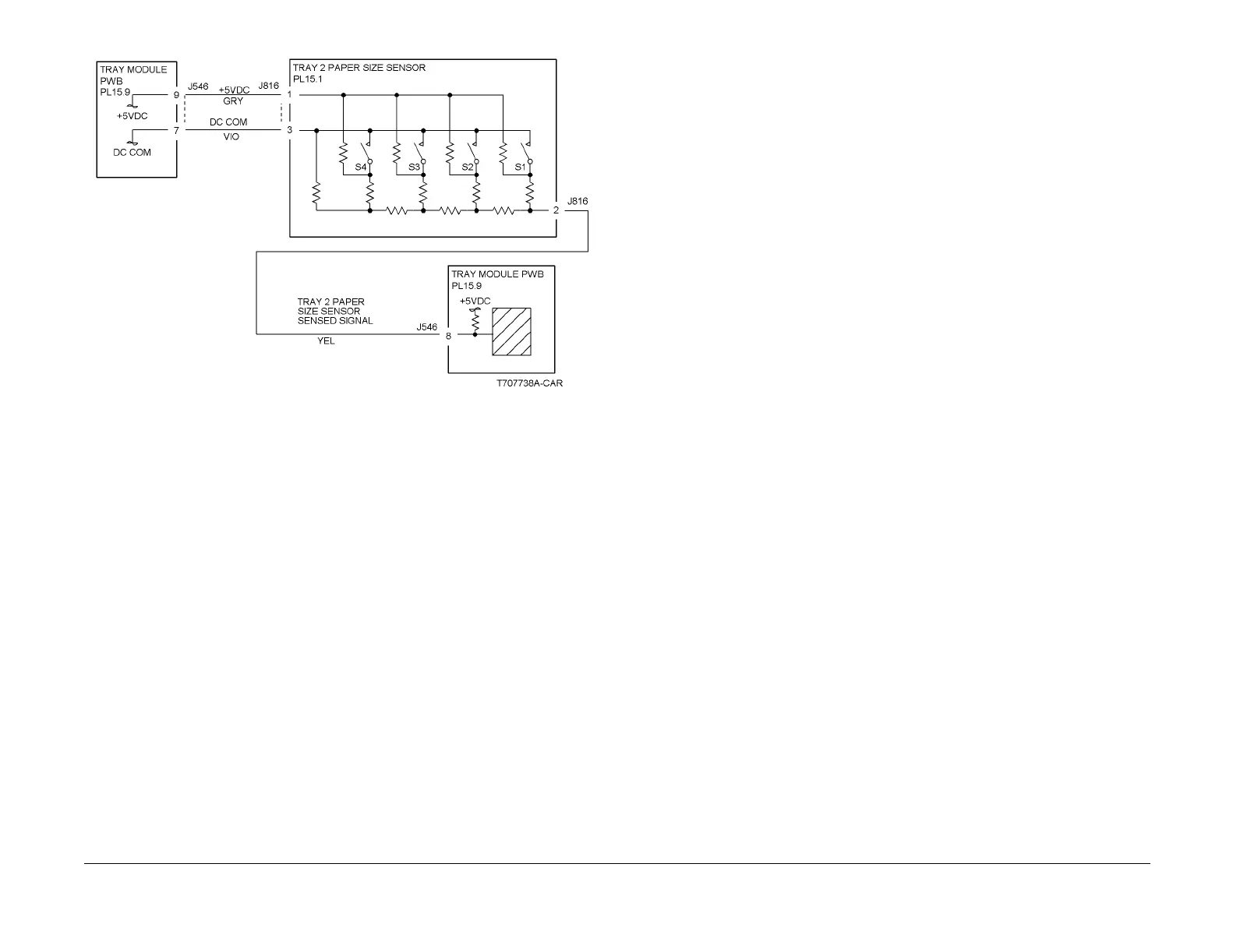
Figure 2 7-271 RAP Circuit Diagram - Tray 2 Paper Size Sensing

Table of Contents

Other manuals for Xerox DocuColor 2240

Related product manuals