EasyManua.ls Logo

Xerox DocuColor 2240 - Page 175

Xerox DocuColor 2240
1489 pages
Print Icon
To Next Page IconTo Next Page
To Next Page IconTo Next Page
To Previous Page IconTo Previous Page
To Previous Page IconTo Previous Page
Loading...
09/03
2-142
DC 3535/2240/1632, WC M24
7-281
Initial issue
Status Indicator RAPs
7-281 Tray 1 Lift
The Tray 1 Level Sensor does not detect tray lift.
Initial Actions
Remove Tray 1 from the machine and empty the paper stock, then:
Manually turn the gear at the rear of Tray 1 to check that the Bottom Plate moves up and
down smoothly.
Check that the Tray 1 Level Sensor Actuator (PL 2.4) is properly seated and operates
smoothly.
Gently push Tray 1 in to check that the drive transmission is firmly engaged.
Ensure that Tray 1 is properly closed.
Procedure
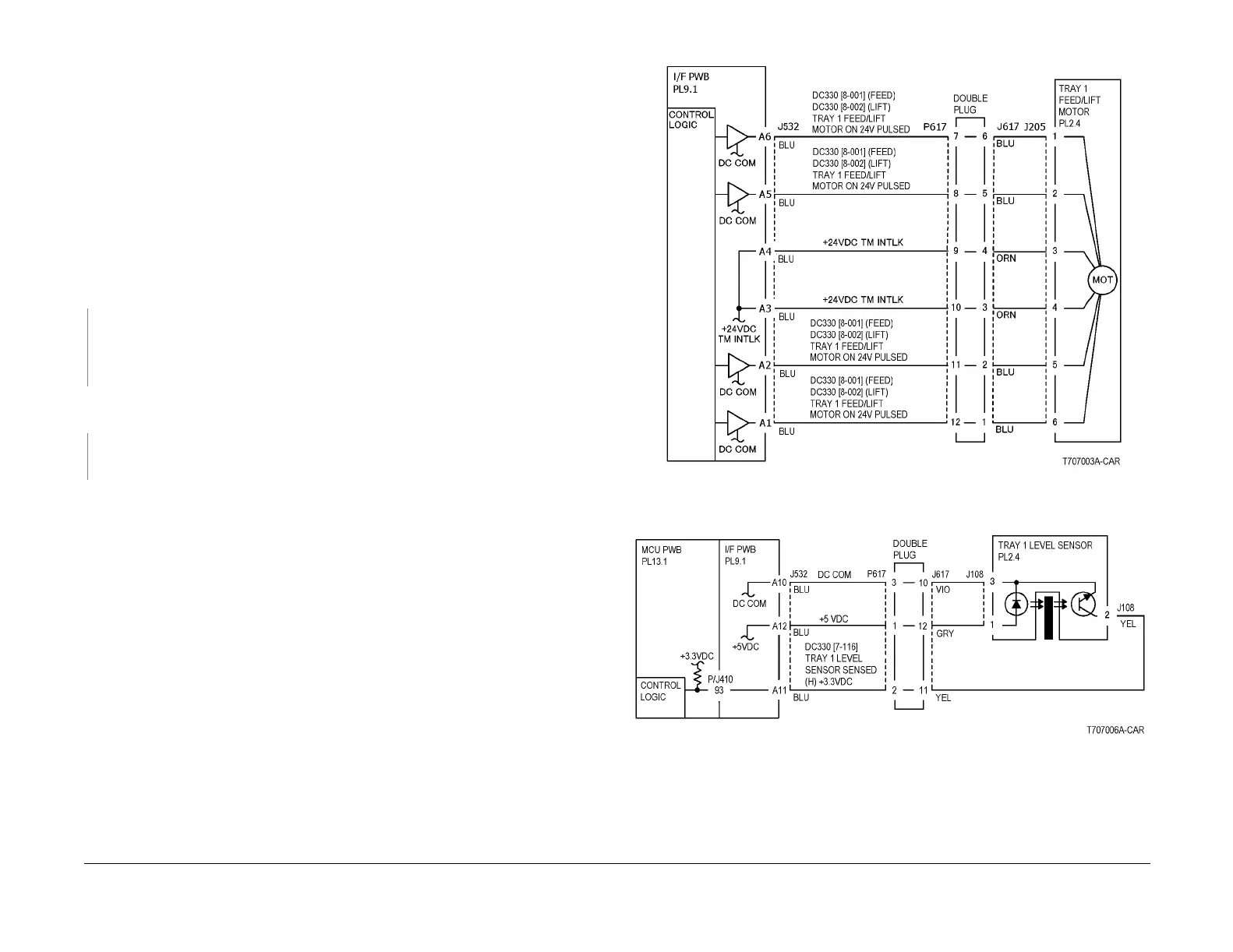
Enter dC330 [008-002] and press Start. The Tray 1 Feed/Lift Motor (PL 2.4) energizes.
YN
Press Stop. Check the circuit of the Tray 1 Feed/Lift Motor (Figure 1). Check the wires
from the I/F PWB to the Tray 1 Feed/Lift Motor for an open circuit. If the wires are good,
replace the Tray 1 Feed/Lift Motor (PL 2.4). If the problem still exits, replace the I/F PWB
(PL 9.1)
Press Stop. Enter dC330 [007-116] and press Start. Open and close Tray 1. The display
changes.
YN
Press Stop. Check the circuit of the Tray 1 Level Sensor (Figure 2). Refer to the OF 99-2
RAP for troubleshooting procedure.
Press Stop.
Check the Tray 1 Feed / Lift Motor and its associated gears (PL 2.4) for damage, contam-
ination or misalignment.
Ensure that the connectors shown in the circuit diagrams (Figure 1, Figure 2) are securely
connected and that the wires are not damaged.
Replace the Tray 1 Level Sensor (PL 2.4).
If the problem persists, replace the I/F PWB (PL 9.1).
Figure 1 7-281 RAP Circuit Diagram - Tray 1 Lift/Feed Motor
Figure 2 7-281 RAP Circuit Diagram - Tray 1 Level Sensor

Table of Contents

Other manuals for Xerox DocuColor 2240

Related product manuals