EasyManua.ls Logo

Xerox DocuColor 2240 - Making Copies Using Features

Xerox DocuColor 2240
1489 pages
Print Icon
To Next Page IconTo Next Page
To Next Page IconTo Next Page
To Previous Page IconTo Previous Page
To Previous Page IconTo Previous Page
Loading...
09/03
2-239
DC 3535/2240/1632, WC M24
12-100
Status Indicator RAPs
Initial issue
12-100 H Transport Entrance Sensor On
The H Transport Entrance Sensor does not detect paper after the Registration Clutch (in IOT)
energized.
Initial Actions
Check condition and specification of the paper supply.
Check for obstructions in the paper feed path.
Clean the H Transport Belt and check for wear.
Check the Guides on the H Transport Cover for damage, wear or faulty installation.
Procedure
Enter dC330 [012-001] and press Start. The Finisher Drive Motor (PL 17.7) energizes (Fig-
ure 4).
YN
Remove the Rear Cover (PL 17.5). +24 VDC is measured between P/J879-2 and 3 on
the Finisher Drive Motor and GND.
YN
+24 VDC is measured between P/J846 - 5 and 7 on the Finisher PWB and GND.
YN
Replace the Finisher PWB (PL 17.13).
Check the wires from P/J846-5 and 7 to J879-2 and 3 for damage or poor contact.
Enter dC330 [012-001] and press Start. Less than +1 VDC is measured between P/
J879 -1 on the Finisher Drive Motor and GND.
YN
Replace the Finisher Drive Motor (PL 17.7).
Check wiring between P/J879 and P/J846 for damage or poor contact. If the check is OK,
replace the Finisher PWB (PL 17.13).
Press Stop. Enter dC330 [012-103] and press Start. Open the H Transport Cover (PL 17.3)
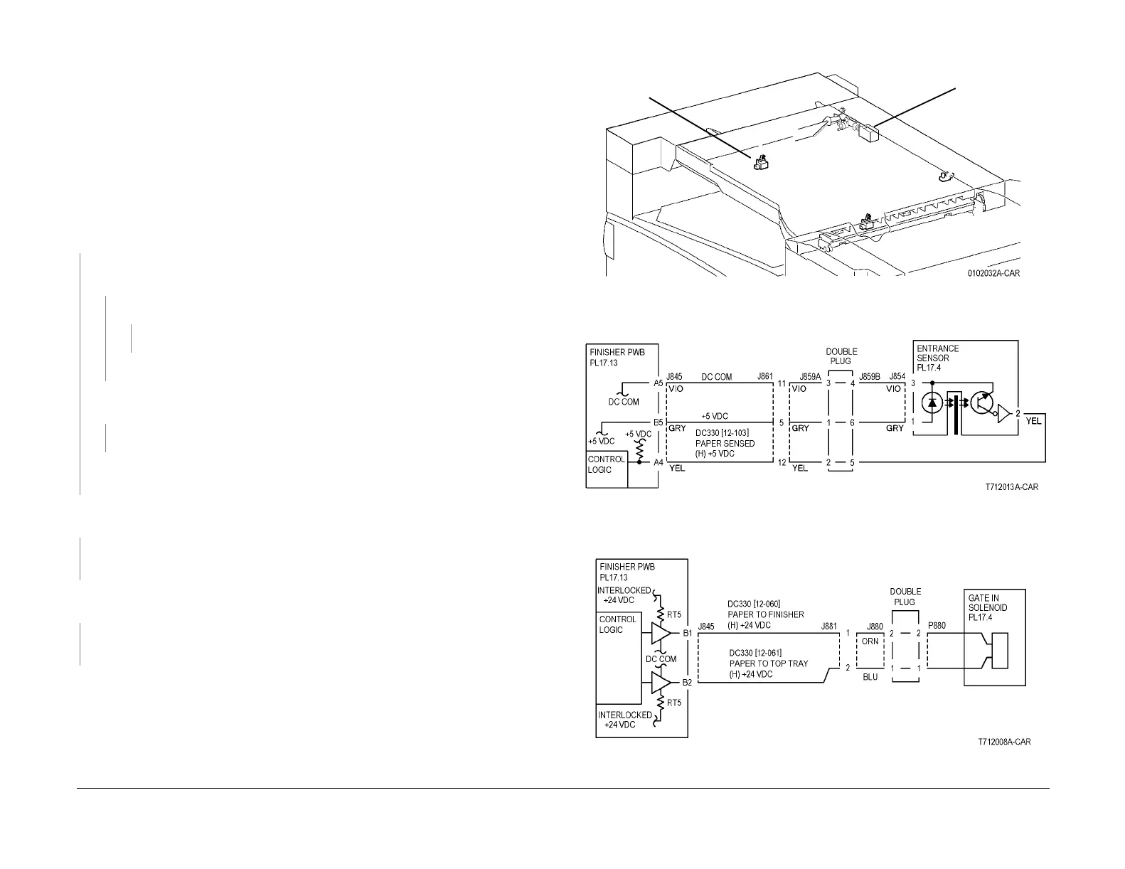
and actuate the H Transport Entrance Sensor (PL 17.4). (Figure 1) The display changes.
YN
Press Stop. Check the circuit of the H Transport Entrance Sensor (Figure 2). Refer to the
OF 99-2 RAP for troubleshooting procedure.
Close the H Transport Cover and press Stop. Enter dC330 [012-060 or 061] and press Start.
The Gate In Solenoid (PL 17.4) actuates (Figure 1).
YN
Press Stop. Check the circuit of the Gate In Solenoid. (Figure 3) Refer to the OF 99-4
RAP for troubleshooting procedure.
Press Stop.
Ensure that the connectors shown in the circuit diagrams (Figure 2, Figure 3, Figure 4)
are securely connected and that the wires are not damaged.
Check the H Transport and Finisher for a docking failure (PL 17.1).
Check the Finisher Drive Motor and its associated gears and belts (PL 17.4, PL 17.7) for
damage, contamination or misalignment.
Replace the H Transport Entrance Sensor (PL 17.4).
If the problem persists, replace the Finisher PWB (PL 17.13) (Figure 5).
Figure 1 Component Location
Figure 2 12-100 RAP Circuit Diagram - H Transport Entrance Sensor
Figure 3 12-100 RAP Circuit Diagram - Gate In Solenoid
Entrance
Sensor
Gate In
Solenoid

Table of Contents

Other manuals for Xerox DocuColor 2240

Related product manuals