EasyManua.ls Logo

Ricoh D014 - Copier and Peripherals; System Configuration 1

Ricoh D014
1622 pages
Print Icon
To Next Page IconTo Next Page
To Next Page IconTo Next Page
To Previous Page IconTo Previous Page
To Previous Page IconTo Previous Page
Loading...
Copier and Peripherals
SM 1-5 D014/D015/D078/D079
Installation
1.2 COPIER AND PERIPHERALS
This is a list of the peripheral devices that can be installed with the copier. There are two
basic configurations.
1.2.1 SYSTEM CONFIGURATION 1
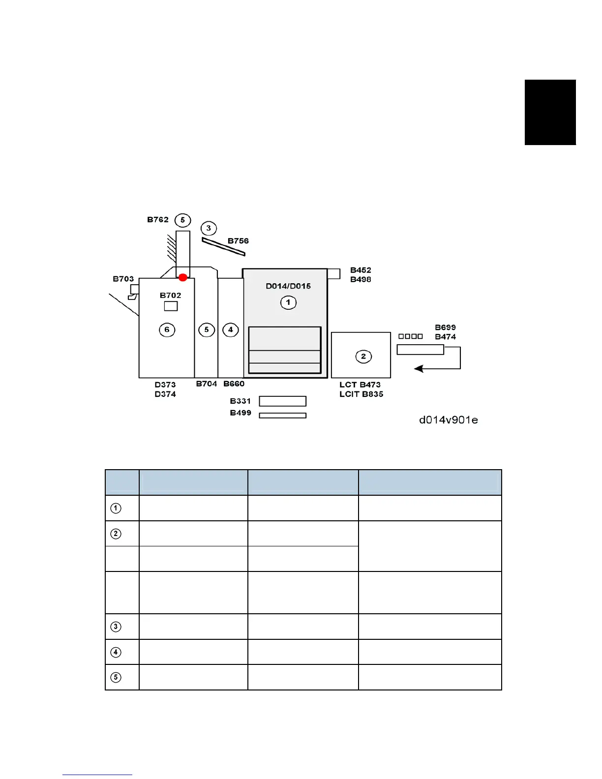
The system should be installed in the order shown above and listed below.
No. Product No. Item Comments
D014/D015/D078/D079 D014/D015/D078/D079 Main unit
D350 LCIT 4000
B473 A4/LT LCT
Only one of these options can
be installed.
B699 LCT Adapter Required for LCT B473 to
adjust its height
B756 Copy Tray Only if no finishers are installed
B660 Z-Folding Unit ZF4000 Requires either D373 or D374
B762 Mail Box CS391 For Finishers D373/D374 only.
CÓPIA NÃO CONTROLADA
CÓPIA NÃO CONTROLADA

Table of Contents

Related product manuals