EasyManua.ls Logo

ABB AC500 PLC - Connection of Resistance Thermometers in 3-wire Configuration

ABB AC500 PLC
1315 pages
Print Icon
To Next Page IconTo Next Page
To Next Page IconTo Next Page
To Previous Page IconTo Previous Page
To Previous Page IconTo Previous Page
Loading...
Pt100 -50 °C...+70 °C / +400 °C;
-200 °C...+850 °C
1 channel used
Pt1000 -50 °C...+400 °C 1 channel used
Ni1000 -50 °C...+150 °C 1 channel used
Cu50 -50 °C...+200 °C (1.426); -200
°C...+200 °C (1.428)
1 channel used
For a description of the function of the LEDs, please refer to Diagnosis and displays / displays
Ä
Chapter 1.5.2.2.2.7 “Diagnosis” on page 493.
The module linearizes the resistance thermometer characteristics.
In order to avoid error messages from unused analog input channels, it is useful to configure
them as "unused".
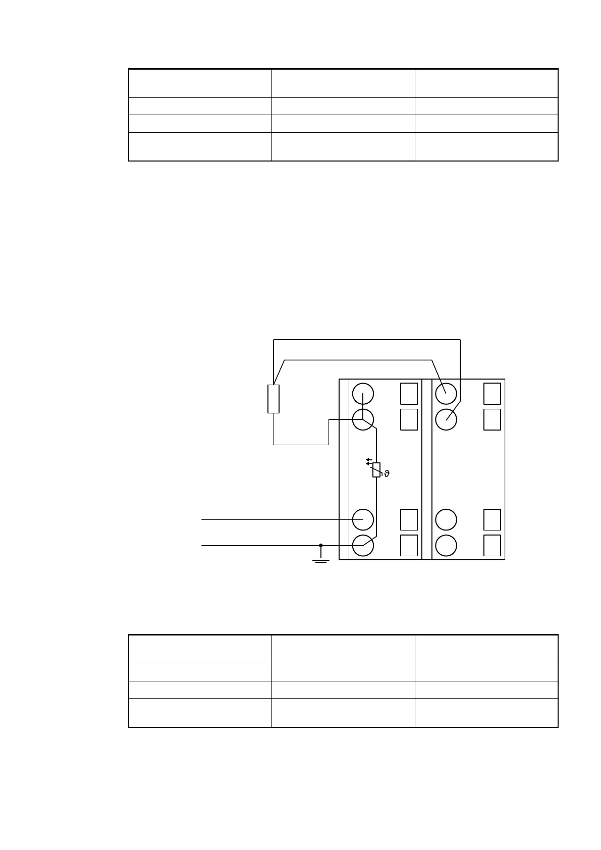
Connection of Resistance Thermometers in 3-wire Configuration
When resistance thermometers (Pt100, Pt1000, Ni1000, Cu50) are used, a constant current
must flow through them to build the necessary voltage drop for the evaluation. For this, the
module AI531 provides a constant current source which is multiplexed over the 4 analog chan-
nels.
1.0
I0-
1.1
I0B
1.8
UP
1.9
ZP
PTC
2.0
I0+
2.1
I0A
2.8
UP
2.9
ZP
ZP
UP
Pt100
Pt1000
Ni1000
Cu50
Fig. 52: Connection example
The following measuring ranges can be configured
Ä
Chapter 1.5.2.2.2.6 “Parameterization”
on page 489:
Pt100 -50 °C...+70 °C / +400 °C;
-200 °C ... +850 °C
1 channel used
Pt1000 -50 °C...+400 °C 1 channel used
Ni1000 -50 °C...+150 °C 1 channel used
Cu50 -50 °C...+200 °C (1.426); -200
°C...+200 °C (1.428)
1 channel used
For a description of the function of the LEDs, please refer to Diagnosis and displays / displays
Ä
Chapter 1.5.2.2.2.7 “Diagnosis” on page 493.
Device Specifications
I/O Modules > Analog I/O Modules
2019/04/17 3ADR010121, 13, en_US 483

Table of Contents

Related product manuals