EasyManua.ls Logo

ABB AC500 PLC - Connection of Resistance Thermometers in 3-wire Configuration

ABB AC500 PLC
1315 pages
Print Icon
To Next Page IconTo Next Page
To Next Page IconTo Next Page
To Previous Page IconTo Previous Page
To Previous Page IconTo Previous Page
Loading...
Pt100 -50 °C...+70 °C 2-wire configuration, one
channel used
Pt100 -50 °C...+400 °C 2-wire configuration, one
channel used
Pt1000 -50 °C...+400 °C 2-wire configuration, one
channel used
Ni1000 -50 °C...+150 °C 2-wire configuration, one
channel used
The I/O module performs a linearization of the resistance characteristic.
In order to avoid error messages from unused analog input channels, it is useful to configure
them as "unused".
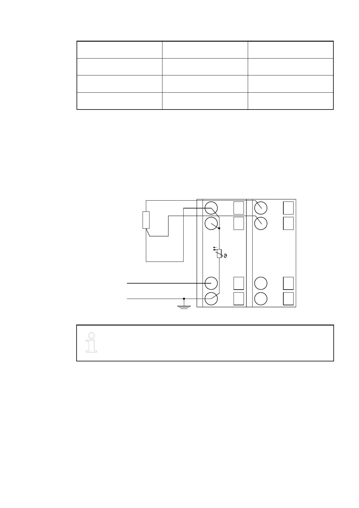
Connection of Resistance Thermometers in 3-wire Configuration
When resistance thermometers (Pt100, Pt1000, Ni1000) are used, a constant current must flow
through them to build the necessary voltage drop for the evaluation. For this, the I/O module
provides a constant current source which is multiplexed over the max. 8 (depending on the con-
figuration) analog channels.
UP
ZP
1.0
I0-
1.1
I1-
1.8
UP
1.9
ZP
PTC
2.0
I0+
2.1
I1+
2.8
UP
2.9
ZP
Pt100
Pt1000
Ni1000
Fig. 71: Connection example
If several measuring points are adjacent to each other, only one return line is
necessary. This saves wiring costs.
With the 3-wire configuration, two adjacent analog channels belong together (e.g. the channels
0 and 1). In this case, both channels are configured according to the desired operating mode.
The lower address must be the even address (channel 0), the next higher address must be the
odd address (channel 1).
The constant current of one channel flows through the resistance thermometer. The constant
current of the other channel flows through one of the cores. The module calculates the meas-
ured value from the two voltage drops and stores it under the input with the higher channel
number (e.g. I1).
In order to keep measuring errors as small as possible, it is necessary to have all the involved
conductors in the same cable. All the conductors must have the same cross section.
Device Specifications
I/O Modules > Analog I/O Modules
2019/04/17 3ADR010121, 13, en_US 549

Table of Contents

Related product manuals