EasyManua.ls Logo

Renesas RX Series - Page 558

Renesas RX Series
1823 pages
Print Icon
To Next Page IconTo Next Page
To Next Page IconTo Next Page
To Previous Page IconTo Previous Page
To Previous Page IconTo Previous Page
Loading...
R01UH0823EJ0100 Rev.1.00 Page 558 of 1823
Jul 31, 2019
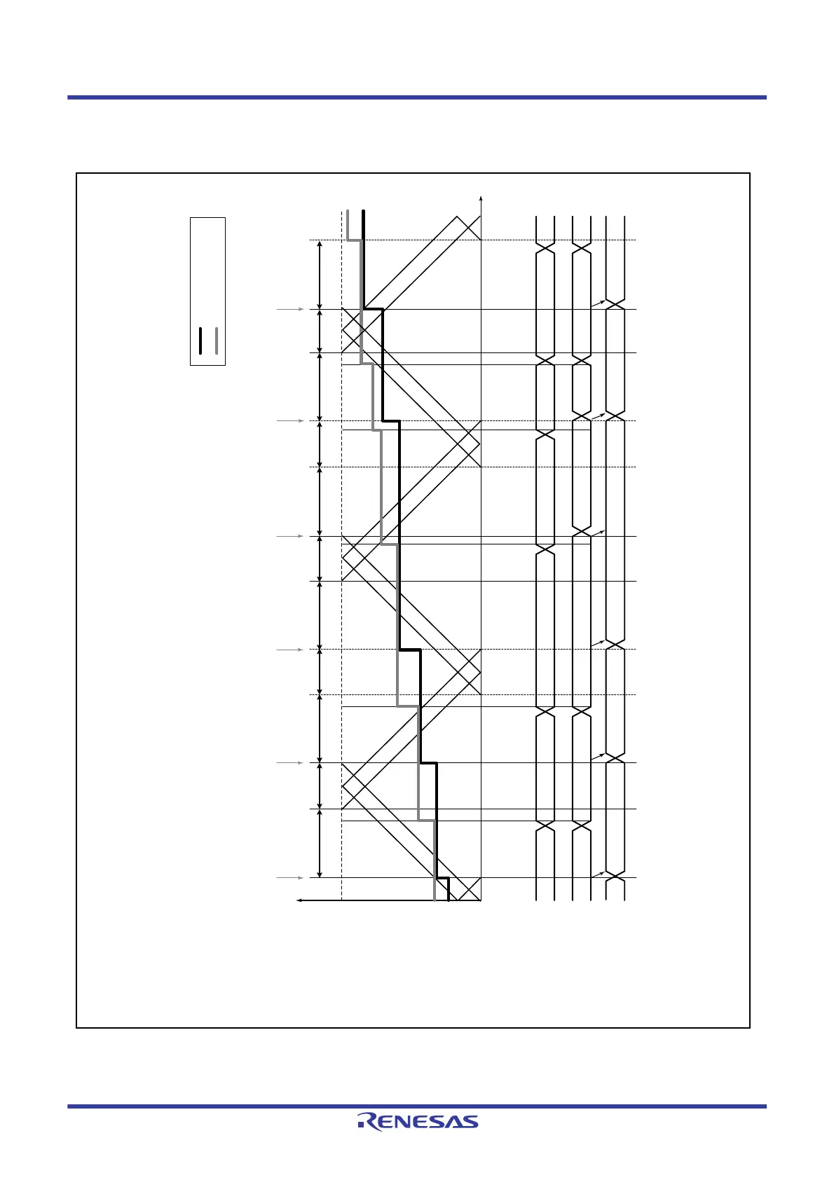
RX23W Group 23. Multi-Function Timer Pulse Unit 2 (MTU2a)
MTU4.TGRD register after writing data to the registers to be updated. In this case, the data written to the MTU4.TGRD
register should be the same as the data prior to the write operation.
Figure 23.43 Example of Data Updating in Complementary PWM Mode
Data update timing: counter crest and trough
Transfer from
temporary register
to compare register
Transfer from
temporary register
to compare register
Transfer from
temporary register
to compare register
Transfer from
temporary register
to compare register
Transfer from
temporary register
to compare register
Transfer from
temporary register
to compare register
Counter value
MTU3.TGRA
Data 1 Data 2 Data 3 Data 4 Data 5 Data 6
Data 1
Data 1
Data 2
Data 3
Data 4 Data 6
Data 2
Data 3 Data 4 Data 5 Data 6
Time
: Compare register
: Buffer register
MTU4.TGRC
MTU4.TGRA
0000h
Buffer register
Temporary register
Compare register
Ta
Tb1
Ta
Tb2
Ta
Tb1
Ta
Tb2
Ta
Tb1
Ta

Table of Contents

Related product manuals