EasyManua.ls Logo

Xerox DocuColor 12/DCCS50 - Page 826

Xerox DocuColor 12/DCCS50
1617 pages
Print Icon
To Next Page IconTo Next Page
To Next Page IconTo Next Page
To Previous Page IconTo Previous Page
To Previous Page IconTo Previous Page
Loading...
1/05
6-146
DocuColor 12/DCCS50
Installation Space Requirements
Reissue
General Procedures
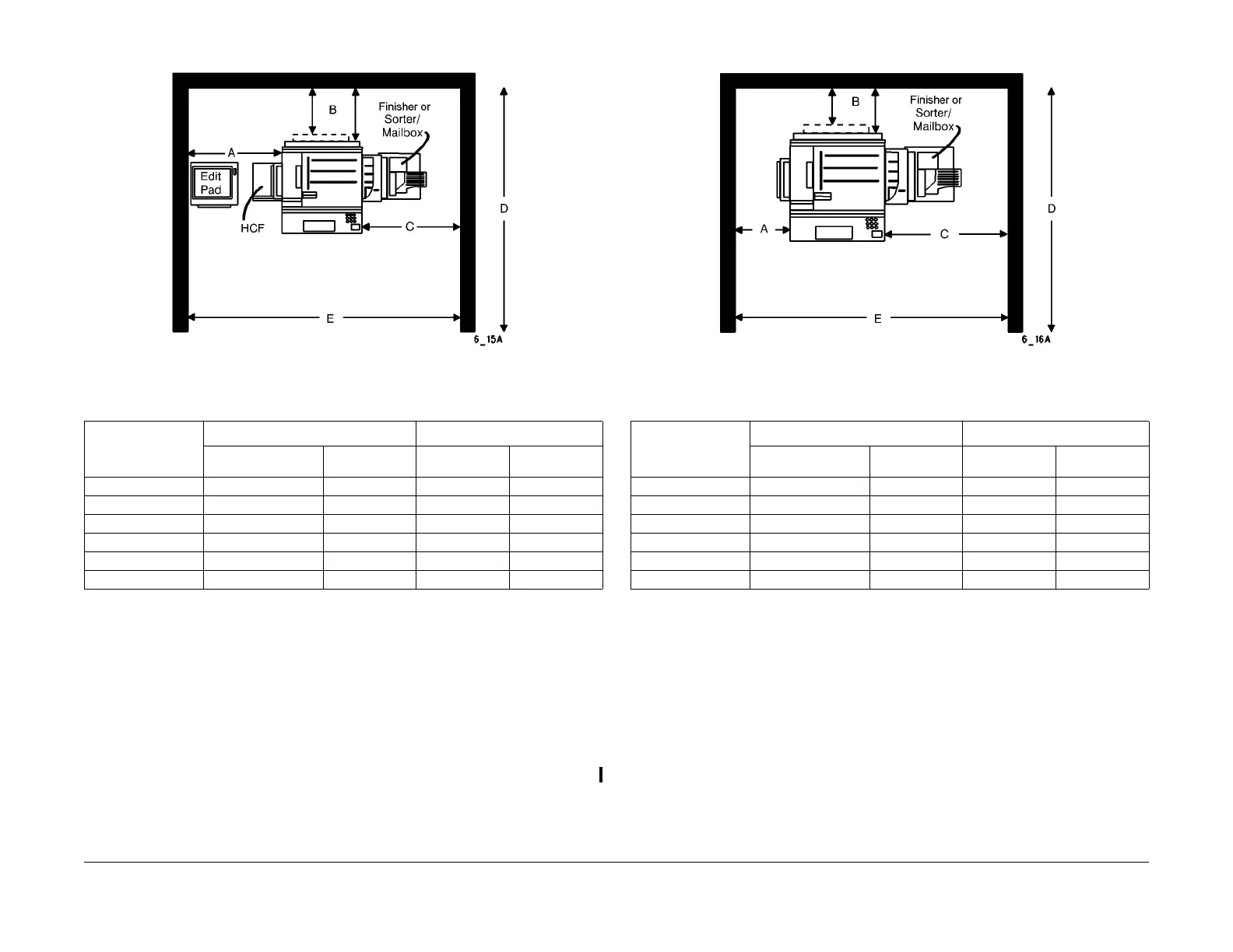
Figure 6 Space Requirements with HCF, Sorter/Mailbox and Edit Pad (Left Side)
¹ Measured from the rear of processor if IDFE is not present.
² 106.5 in. (2705mm) if installed in hallway.
³ 110.5 in. (2807mm) if installed in hallway.
* 86.5 in. (2200mm) if installed in hallway.
** 90.5 in. (2300mm) if installed in hallway.
Installation Space Requirements with Sorter/Mailbox
(Figure 7)
Figure 7 Installation Space Requirements with Sorter/Mailbox
¹ Measured from the rear of processor if IDFE is not present.
² 106.5 in. (2705mm) if installed in hallway.
³ 110.5 in. (2807mm) if installed in hallway.
* 86.5 in. (2200mm) if installed in hallway.
** 90.5 in. (2300mm) if installed in hallway.
Installation Space Requirements with Sorter/Mailbox and Edit Pad
(Left Side)
(Figure 8)
Table 6 Space Requirements with HCF, Sorter/Mailbox and Edit Pad
Dimensions
Fixed Space Requirements Movable Space Requirements
in. mm in. mm
A 86 2185 86 2185
B ¹ 24 610 4 100
C 65.5 1665 65.5 1665
D w/o IDFE 91.5 ² 2324 ² 71.5 * 1816 *
D w/ IDFE 95.5 ³ 2426 ² 75.5 ** 1918 **
E 176 4470 176 4470
Table 7 Installation Space Requirements with Sorter/Mailbox
Dimensions
Fixed Space Requirements Movable Space Requirements
in. mm in. mm
A 21 533 21 533
B ¹ 24 610 4 100
C 65.5 1665 65.5 1665
D w/o IDFE 91.5 ² 2324 ² 71.5 * 1816 *
D w/ IDFE 95.5 ³ 2426 ² 75.5 ** 1918 **
E 111 2819 111 2819
manuals4you.commanuals4you.com

Table of Contents

Related product manuals